

Informations du projet
Concours 2019
Lieu
Pantin - Île de France
Maître d'ouvrage
Ville de Pantin
Programme
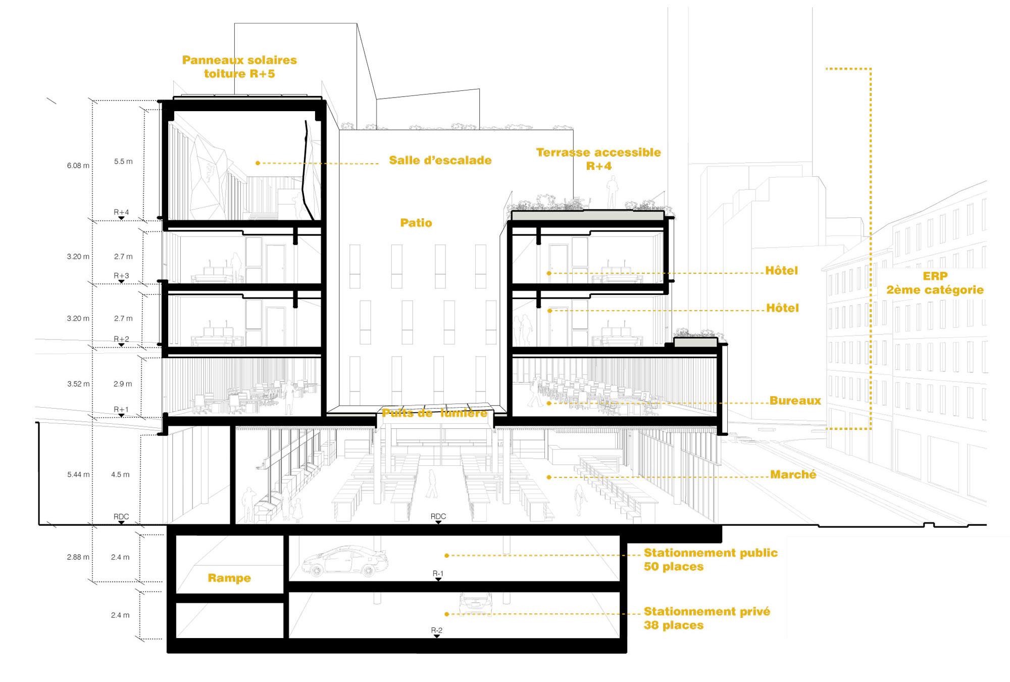
Réhabilitation de la halle de marché Magenta dans le cadre d’un marché global de performance lancé par la Ville de Pantin (93) et dans la continuité du Nouveau programme national de renouvellement urbain (NPNRU) entre Pantin et Aubervilliers.
Surface
11 017 m²
Halle de marché - 1 923 m²
Commerces - 356 m²
Bureaux - 2 109 m²
Hôtel - 4 593 m²
Salle de sport - 1 851 m²
Hall commun - 185 m²
Parc de stationnement - 88 places
Architecte mandataire
L'ATELIER [architectes]
Partenaires
Alsei _ Promoteur
Scooping _ Bureau d'études
Amstein & Walthert _ Bureau d'études
Wagon _ Paysage
X Fermer
Informations du projet
- Créer une dynamique urbaine dans le quartier des Quatre Chemins avec la mise en place d’une mixité programmatique ouverte sur la ville.
- Offrir une halle de marché lumineuse, polyvalente et ouverte sur l’espace public.
- Prévoir une flexibilité dans le temps avec la réversibilité totale du marché et des opérations connexes.
- Proposer une réponse environnementale innovante et durable.

Halle Magenta - Île de France

Halle Magenta - Île de France

Halle Magenta - Île de France

Halle Magenta - Île de France

Halle Magenta - Île de France

Halle Magenta - Île de France

Halle Magenta - Île de France

Halle Magenta - Île de France